【完成見学会@周防大島】瀬戸内のハワイで見つける新たな暮らし方!
開催日: 2025.
06.24(火)
14:00〜16:00
山口県大島郡

「瀬戸内海 × セカンドハウス × 宿運営」——“旅する暮らし”をこの島で。
お申し込みはこちら
https://ewform.enjoyworks.jp/index.php?id=1771
「瀬戸内のハワイ」とも呼ばれる島をご存じですか?
山口県 周防大島(すおうおおしま)は、海と山の自然に恵まれた、のどかで心地よい島。美しい景観と本州からのアクセスの良さで、いま全国から熱い注目を集めているエリアです。
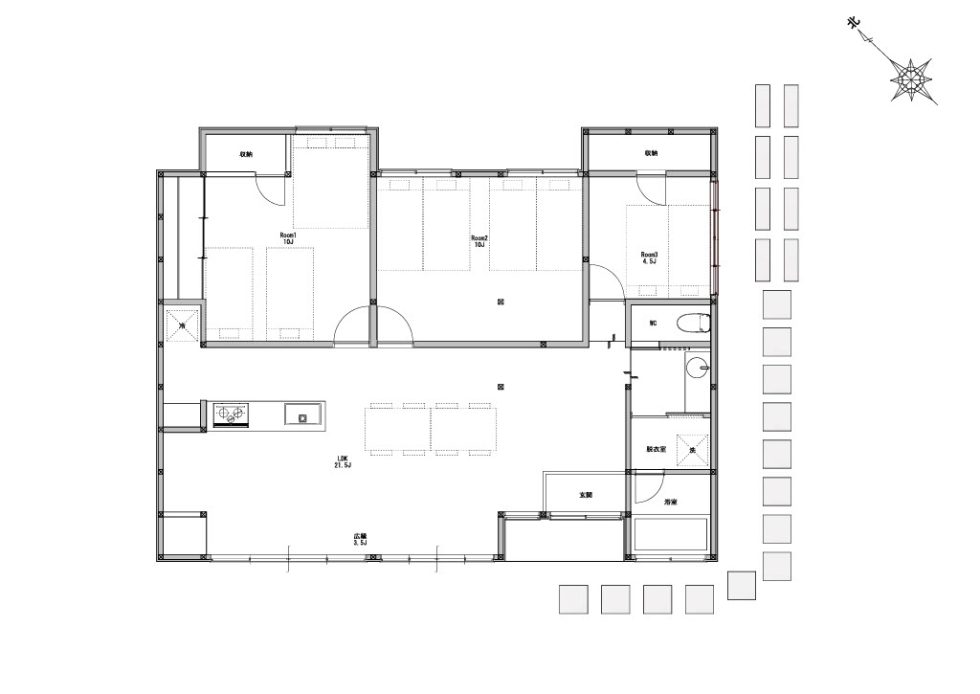
そんな周防大島にて、築100年以上の古民家をフルリノベーションした、セカンドハウス兼宿泊施設として使える物件が誕生します!
完成に先立ち、現地での完成見学会を開催決定!「自然の中で暮らしたい」「宿業を始めてみたい」そんな想いを持つ方は、ぜひ現地でその魅力を体感してください。



今回はそんな竣工したての物件を見られる貴重な機会!本物件を宿運営する場合の運営事業者、リノベーションを担当したプロデューサーが現地で直接ご説明し、質問にお答えします。もし物件を気に入ったら、そのまま購入相談も可能となっております!
こんな方におすすめです!
・自然の中での暮らしやセカンドハウスに興味がある方
・宿泊施設の運営を考えている方
・地方移住や二拠点生活を検討している方
・海、山に囲まれてのんびり過ごしたい方
■詳細
日程:2025/6/24(火)
時間:13:00~16:00(ご都合のよいお時間にお越しください)
参加費:無料(現地までの交通費はご負担ください)
所在地:山口県大島郡周防大島町西屋代中片山2267
アクセス:岩国錦帯橋空港から車で約40分、JR大畠駅から車で約11分