【ご報告】愛ある団地ファンド3号大阪豊中、リノベーション工事開始!
エンジョイワークス オオサカの萩原です。
「愛ある団地ファンド3号大阪豊中」にご投資いただきました皆さま、改めて感謝申し上げます。
本ファンドの運用期間(事業期間)は2025年10月1日~2026年9月30日の12ヶ月間ですが、順調なスタートを切ることができましたこと、ご報告させていただきます。
北緑丘第二住宅9号棟、80㎡の工事開始!
少しでも販売期間を長く取りたいと考え、10月1日に着工。まずは解体工事を開始しております。
リノベーション施工を手掛けるのは、大阪・北摂で信頼を集める「ひかり工務店」。
解体工事の内容だけでも、お仕事の丁寧さを感じることができました。




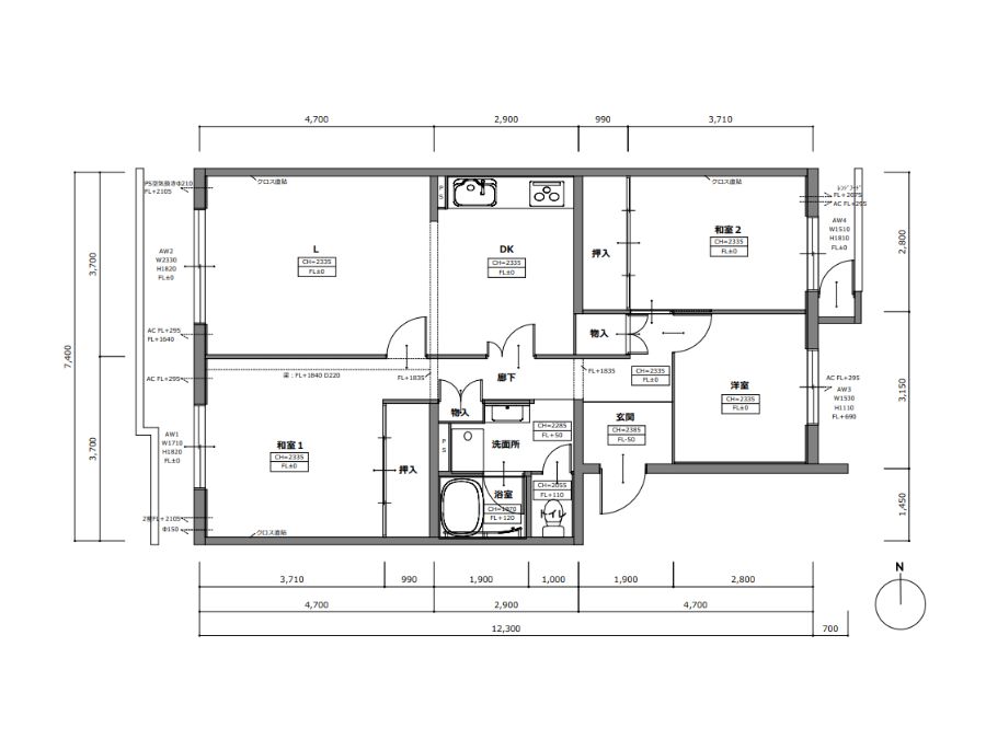
今回のリノベーションプランは、子育て世帯を想定した間取り(3LDK)を採用しております。
もちろん、愛ある団地リノベーションのシンボルとなる「断熱工事」もおこないます。
どんなお部屋になるのか?完成が本当に楽しみです。

工事完了・引き渡しは12月中下旬を予定しております。
早期完売を目指し、施工中ではありますが「団地系イベント」や「SNS広告」などを通した販売活動も実践してまいります。(内容確定次第、皆さまに告知させていただきます)
素敵な方にお住みいただくことを目標に、関係者一同、取り組んでまいります。

